Fourth floor plan with terrace of hostel in AutoCAD
Description
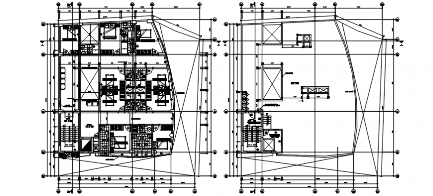
Fourth floor plan with terrace of hostel in AutoCAD its include detail of flooring area and wall view with entry way hall washing area and view of bedroom view with washing area in plan of hostel and terrace plan include terrace with stair in out area.
Uploaded by:
Eiz
Luna

